ФОРУМ ПО ЭЛЕКТРОНИКЕ



Архив - только для чтения
Светодиодные ленты
 Пт, 01.06.2012, 14:42 | Сообщение # 211        

MAESTRO

^

 Активность: 5564   

Ну вот - так и используй. Тем более их потом заряжать можно.
 Пт, 01.06.2012, 14:58 | Сообщение # 212        

Gelo

Пользователи

 Активность: 6   

а их сразу 2 заряжать от жабы можно?
я просто смотрел на LiPo аккумуляторы, как вариант, но
2 аспекта не устраивают: 1 цена, 2 я с ними вообще не знаком и ранее не имел никаких делов.


поправил Gelo - Пт, 01.06.2012, 16:20
 Пт, 01.06.2012, 15:09 | Сообщение # 213        

MAESTRO

^

 Активность: 5564   

Последовательно Li-Ion соединять не рекомендуется, но я так делаю smile Через резистор 20 Ом подаю питание 10-12В
 Вс, 03.06.2012, 20:48 | Сообщение # 214        

Gelo

Пользователи

 Активность: 6   

Новый вопрос, имеется Li-Po батарейка 11.1в 1000мач и токоотдачей 30с насколько комфортно она будет работать с потребителем на 80мач
если потребитель не требует токоотдачи в 30с, даже 1с не требует...?
 Пн, 04.06.2012, 22:57 | Сообщение # 215        

imbob

Пользователи

 Активность: 1   

У меня вопрос - дилемма.
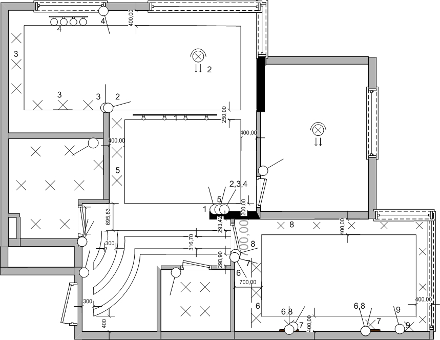
Соорудил себе красивые гипсокартонные потолки в прихожей виде трех изогнутых линий (см. рисунок). По обеим сторонам линий, как положено, место для установки светодиодной ленты. В начале первой (самой длинной линии) приходит провод с 220 с распределительной коробки, где он подключается к выключателю в прихожей (распред коробка находится в кладовой напротив входной двери). Остальные две линии питаются от приходящего провода из распред. коробки, путем параллельного подсоединения к нему.
Вдоль этих гипсокартонных линий по обеим сторонам мне необходимо установить светодиодную ленту. Общая длина линий 20 метров.
Соответственно я купил 20 метров светодиодной ленты с мощностью 14,4 Вт. на метр и два трансформатора по 150 Ватт. Да вот только они большие и в мою конструкцию потолочную не входят (либо будут торчать а это не красиво). Поэтому нужно их прятать в распределительную коробку а уже оттуда к линиям подводить 12 вольт. Вот только провод приходящий у меня один, а трансформаторов два (подвести доп. провода нет возможности).
Вопрос как мне подсоединить эти два трансформатора к одному проводу (3 жилы) так, чтобы к линиям у меня приходил ток 12 вольт и хватило на 5 светодиодные ленты.
На каждом трансформаторе можно навесить по 2 ленты по 5 метров. Если я в распред коробке питающий провод моих линий подсоединю параллельно к 4 выходам двух трансформаторов - а уже в линиях от этого провода параллельно подключу 4 светодиодные ленты, которые я распределю в этих самых линиях, работать будет моя конструкция? Чувствую, что нет....
Может кто посоветует, как быть? Заранее спасибо.
Прикрепления: 0574960.jpg (157.8 Kb)


поправил imbob - Пн, 04.06.2012, 22:59
 Пн, 04.06.2012, 23:18 | Сообщение # 216        

ZmEy76

Друзья

 Активность: 730   

wacko Всего 20метров? Трансформаторы 2, каждый на 2 выхода по 5 метров. То есть куда 5ую ленту тыкать? Выходы между двумя трансформаторами параллелить не пойдёт, да и длину провода (там в инструкции) написано (не более определённой). Вопрос конечно...., если не прокладывать правильную проводку.

поправил ZmEy76 - Пн, 04.06.2012, 23:23
 Сб, 07.07.2012, 13:23 | Сообщение # 217        

Badghost0

Пользователи

 Активность: 2   

MAESTRO, Может и риторический вопрос...Можно ли запитать ленту через блок питания от китайских кассетников, на выходе которого 12 V... С ТОКОМ НЕПОНЯТКИ

У тебя был ответ....

В любой светодиодной ленте уже стоит токоограничитель, поэтому можно брать любой блок питания с нужным напряжением, например от компьютера 12В и любым (большим) током. На литературу забей, я сам кроме журналов радио и радиолюбитель ничего не читал. Главное - практика!

То есть можно...
 Сб, 07.07.2012, 20:23 | Сообщение # 218        

MAESTRO

^

 Активность: 5564   

У каждого блока питания есть предельный ток, который он выдаёт. Для светодиодной ленты на метров 5, понадобится ток 3-5А. А сможет ли его дать тот БП? Там максимум 1 ампер.
 Вс, 08.07.2012, 11:35 | Сообщение # 219        

Badghost0

Пользователи

 Активность: 2   

MAESTRO, На подсветку аквариума сейчас прикупил: БП на выходе 12 В, 500 мА...Лента даже в бухте 5м горит, может не в полную силу...но горит... )
В Новосибирске видел БП, но уже на 5А - 200рублей и лента по 100 за метр... + коннектор 30 рублев... Весь дом в подсветке уделаю biggrin

P.S. Спасибо, отличный сайт)))
 Пн, 16.07.2012, 12:49 | Сообщение # 220        

::Jakarta::

Пользователи

 Активность: 3   

Всем привет. Есть аккумулятор 12в 9800 мач, хочу от него вывести 8 метров RGB (5050) ленты 12в, вот только не знаю с каим количеством диодов взять 30 или 60. Сколько времени проработает 8 метровая лента (480 диодов) от аккума?
Поиск:

Внимание! Форум переехал на Tehnodium.ru




© Форум по электронике Мобильная версия